Habitat parasismique pour la reconstruction

Date de l’opération : Octobre 2006

Durée : Un mois

Financement : Croix Rouge Française

Ce travail de conception d’un prototype d’habitat individuel parasismique utilisant la technologie des murs en gabions (ou Murs en Pierres Confinées, MPC) s’appuie sur les conclusions et les recommandations de Guy Besacier, ingénieur spécialiste du parasismique qui a effectué une mission d’évaluation pour la Croix Rouge Française en novembre 2005, et sur les différents rapports et remarques des membres de l’équipe d’A&D au Pakistan. Il s’agit là d’une première étape qui doit conduire à la réalisation d’un prototype. Avant cela, le dimensionnement des éléments finis devrait être effectué prochainement par un bureau d’ingénierie.

Il nous a semblé essentiel de ne pas limiter notre recherche à l’aspect purement technique du prototype (et particulièrement à ses performances en termes de résistance parasismique), mais d’envisager son développement au travers de l’économie même du projet (choix des matériaux et de leur filière de production existante ou à créer) et des réalités du contexte socio-culturel particulier du nord du Pakistan.
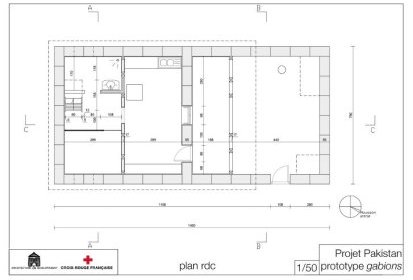
C’est pour cette raison, que, tout d’abord, la partie habitation du prototype (en soustrayant l’espace de la cour) se développe sur deux niveaux et environ 75 m2 pour huit personnes, alors que les recommandations des programmes de reconstruction déconseillent les réalisations de plusieurs niveaux et recommande un ratio de moins de 4 m2 par habitant pour les nouvelles constructions.
La conception de ce prototype est ensuite une sorte de synthèse de plusieurs intentions et pistes de réflexion pour envisager la reconstruction de l’habitat des plus démunis dans le district de Batagram, mais aussi pour en envisager l’amélioration.

Le prototype n’est pas une image figée de ce que l’on doit faire mais un condensé de possibilités ; que cela soit aussi bien en termes de confort et d’espace, que de la mise en œuvre de technologies alternatives et innovantes. Le principe de maison sur cour est plus adapté aux habitats regroupés de vallées, mais dans un contexte montagneux la toiture-terrasse peut se substituer à la cour.

C’est pour cette raison que nous présentons plusieurs options techniques et que l’agencement des espaces intérieurs (au moyen de cloisons souples et amovibles) n’est pas définitif et peut être facilement adapté aux besoins des habitants.
Un soin particulier a été porté à l’étude des techniques traditionnelles, non pas pour reproduire ce que certains habitants du district de Batagram savent encore faire (même si la connaissance des savoirs faire traditionnels se dilue avec le temps, ce qui augmente le risque de malfaçons et par conséquent le risque d’effondrement des structures), mais pour y déceler les potentialités technologiques et les possibilités d’hybridations constructives.
C’est en réinterprétant certaines cultures spatiales et techniques de la région et en ne sous-estimant pas la faculté des Pakistanais à intégrer, reproduire et améliorer de nouveaux procédés de mise en œuvre, que nous envisageons la possibilité de la régénération de ses architectures traditionnelles dans le cadre de ce programme de reconstruction.

Avantages du gabion :

G. Besacier a identifié plusieurs raisons qui peuvent justifier l’usage des gabions pour une reconstruction post-sismique dans la zone sinistrée de Batagram :

  La présence de quantité importante de la matière première (la pierre) nécessaire à la fabrication des gabions sur les sites de reconstruction. La pierre de remplissage est en effet largement disponible en zone montagneuse (notamment du schiste) sous forme de blocs bruts ou dans les vallées, sous forme de galets, ce qui rend son emploi très peu onéreux sur les sites concernés.
  Le recours à une connaissance locale et empirique des techniques de construction en pierres sèches et sa réactualisation peuvent contribuer à l’invention de techniques constructives mixtes, innovantes et économiques.
  Un mortier de liaison à base de ciment, dont le coût peut s’avérer élevé, n’est pas utilisé dans la réalisation des murs en gabions. Le chantier est ainsi “sec”, il peut donc se dérouler par tous les temps. Il est également plus facile à diriger et gérer.
  La mise en œuvre facile des gabions, par empilement, ne nécessite pas de compétence particulière et permet un montage rapide des structures.
  Les fondations des murs peuvent être aussi réalisées en gabions.
  La présence de quelques expérimentations locales de la technique du gabion pour des ouvrages de soutènement.
  Un apparemment faible surcoût (non estimé pour l’instant) du métal pour la fabrication des cages en grillage a été constaté sur place.
  La fabrication des cages par pliages et assemblages ne nécessite pas l’apport d’énergie électrique.
  La possibilité d’impliquer les bénéficiaires dans le processus de fabrications des éléments grillagés, notamment pour le montage des cages par ligatures (la précieuse connaissance de l’art de la vannerie par certains hommes pourrait ainsi permettre leur implication dans le projet). Ce processus de fabrication peut-être également semi-industriel et ainsi permettre un appui à la relance économique du tissu des petites entreprises locales.

Documents joints